Wohnung zur Miete in Düsseldorf

Wunderschöne, möblierte 3-Zimmer-Wohnung mit Balkonen in Düsseldorf-Düsseltal

1.800 €

Miete zzgl. NK
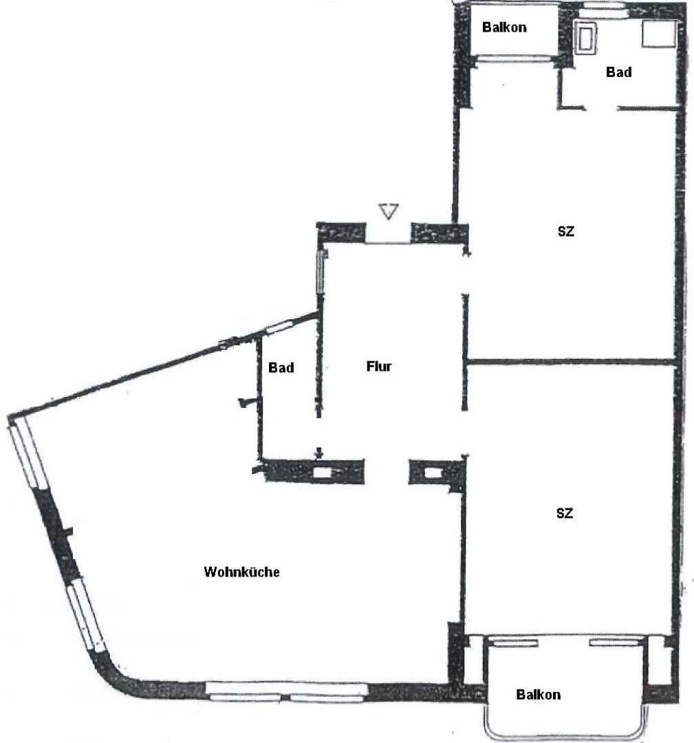
  • 100 m²

    Wohnfläche (ca.)
  • 3

    Zimmer
  • 1936

    Baujahr
  • 2

    Schlafzimmer

Preise & Kosten

Standort
  • Windscheidstraße 28, 40239 Düsseldorf - Düsseltal
Preise
  • Miete zzgl. NK 1.800 €
  • Nebenkosten 400 €
  • Kaution 5.400 €

Die Immobilie

Wohnung zur Miete
  • Objekt-Nr 20006-6962
  • Kategorie Luxus
  • Etage 4
  • Anzahl Etagen 4
  • verfügbar ab VB
  • Modernisierungen 2022
Räume und Flure
  • Anzahl Badezimmer 2
  • Anzahl Wohneinheiten 16
  • Anzahl Balkone 2

Ausstattung

  • Kabel/Sat-TV
  • Zustand: teil/vollrenoviert
  • Möbliert: voll
  • Bad mit: Fenster
  • Küche: Einbauküche, Offene Küche
  • Boden: Laminat

Ihr Ansprechpartner

Schneider Immobilien GmbH

Tobias Otten

Telefon: 02102.709400

Anbieter Impressum

Ihre Anfrage

Energieverbrauchsausweis

  • A+
  • A
  • B
  • C
  • D
  • E
  • F
  • G
  • H
0255075100125150175200225250
121 kWh/(m²*a)
  • Endenergieverbrauch 121 kWh/(m²*a)
  • Energieverbrauch inkl. Warmwasser
  • Befeuerungsart Gas
  • Wesentlicher Energieträger Gas
  • Energieeffizienzklasse D
  • Gültig bis 12.03.2034
  • Energieausweis Ausstellungsdatum 2024-03-13