Haus zum Kauf in Düsseldorf

Individuelles, großzügiges Reihenhaus Düsseldorf-Garath / Urdenbacher Kämpe

479.000 €

Kaufpreis
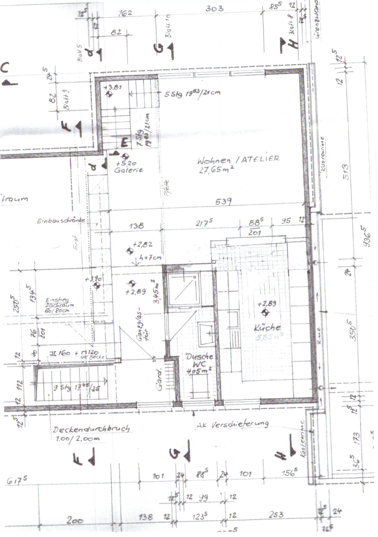
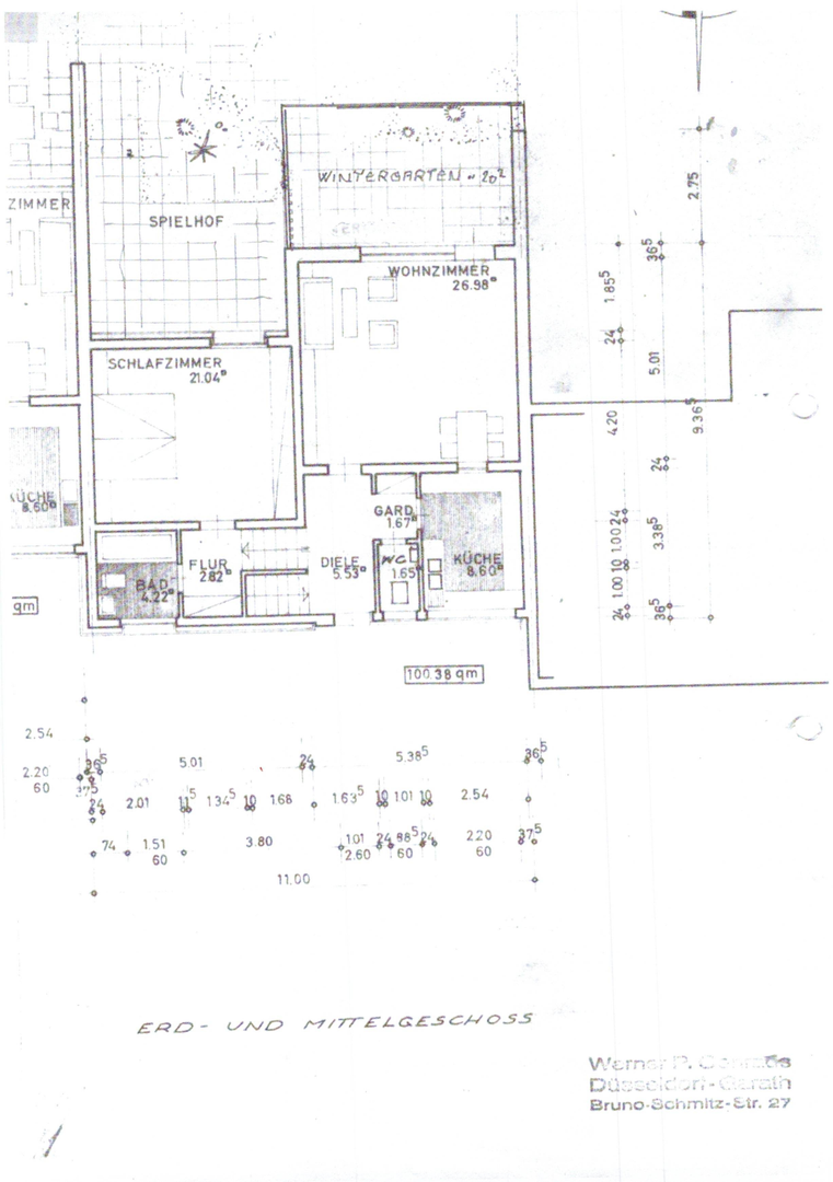
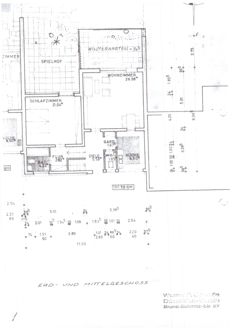
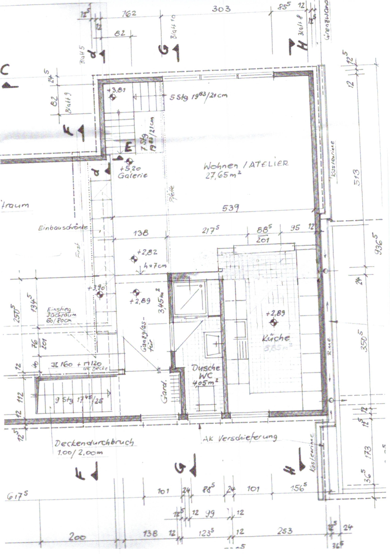
  • 141 m²

    Wohnfläche (ca.)
  • 5

    Zimmer
  • 352 m²

    Grundstück (ca.)
  • 50 m²

    Nutzfläche (ca.)

Preise & Kosten

Standort
  • 40595 Düsseldorf - Garath
Preise
  • Kaufpreis 479.000 €
  • Käuferprovision inkl. USt. 3.57 %

Die Immobilie

Haus zum Kauf
  • Objekt-Nr 64312-72584
  • Kategorie Standard
  • Anzahl Etagen 3
  • verfügbar ab nach Absprache
  • Modernisierungen 1990
Stellflächen
  • Garagenanzahl 1
Räume und Flure
  • Anzahl Schlafzimmer 5
  • Anzahl Badezimmer 3
  • Anzahl Terrassen 2

Ausstattung

  • Provisionspflichtig
  • Wasch/Trockenraum
  • Wintergarten
  • Abstellraum
  • Baujahr: 1965
  • gepflegt
  • Unterkellert: Ja
  • Bad mit: Dusche, Wanne
  • Heizungsart: Zentralheizung

Ihr Ansprechpartner

Tust Immobilien GmbH

Gérard Tust

Telefon: 0211-5504440

Anbieter Impressum

Ihre Anfrage

Energieausweis