Zinshaus/Renditeobjekt zum Kauf in Ratingen

Vermietete Maisonettewohnung mit geräumiger Loggia: Großzügig und modern wohnen!

789.000 €

Kaufpreis
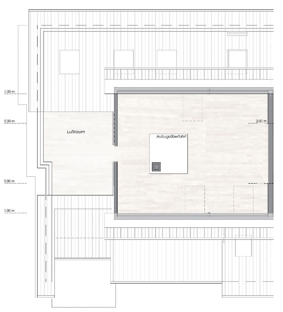
  • 166,45 m²

    Wohnfläche (ca.)
  • 4

    Zimmer
  • 2024

    Baujahr
  • 2

    Schlafzimmer

Preise & Kosten

Standort
  • 40883 Ratingen
Preise
  • Kaufpreis 789.000 €
  • Mieteinnahmen (Ist) 28.680 €

Die Immobilie

Zinshaus/Renditeobjekt zum Kauf
  • Objekt-Nr 210361-HA-6060
  • verfügbar ab vermietet
  • Heizungsart Zentralheizung
  • Fahrstuhl Personen
  • Provisionspflichtig
Stellflächen
  • Anzahl Stellplätze 1
  • Stellplatzpreis 25.000 €
  • Stellplätze 1
Weitere Flächen
  • vermietbare Fläche (ca.) 166,45 m²
Räume und Flure
  • Anzahl Badezimmer 2

Ihr Ansprechpartner

Wundes und Partner

Wundes und Partner

Telefon: 0049 2129 - 94 99 0

Anbieter Impressum

Ihre Anfrage